086 Haus SHM Wettstetten 2009 - 2011
Auftraggeber privat
Nutzfläche 150 m²
Baukosten KG 300 und 400 315.000 Euro
Leistungen 1-8
Status gebaut
Weitere Infos
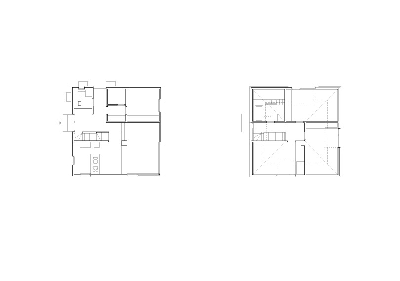
Inmitten eines alten Obstgartens erhebt sich auf quadratischem Grundriss ein weisses Holzhaus mit Walmdach und markantem Oberlicht über dem Treppenraum. Das familiäre Leben spielt sich im Erdgeschoss auf drei Ebenen ab, die man aussen am massiven Sockel ablesen kann: vom Eingangsniveau gelangt man über zwei Stufen in den Wohnraum hinunter und über eine Steigung hinauf in den Essbereich. Von dort führt eine Treppe in die Schlafräume des Obergeschosses, die über Zwerchgiebel belichtet werden. In Holzrahmenbauweise vorfabriziert betrug die Aufstelldauer eine Woche, ehe der Innenausbau vonstatten ging.