093 Haus BHL Ingolstadt 2010 - 2012
Auftraggeber privat
Nutzfläche 125 m²
Leistungen 1 - 8
Status gebaut
Weitere Infos
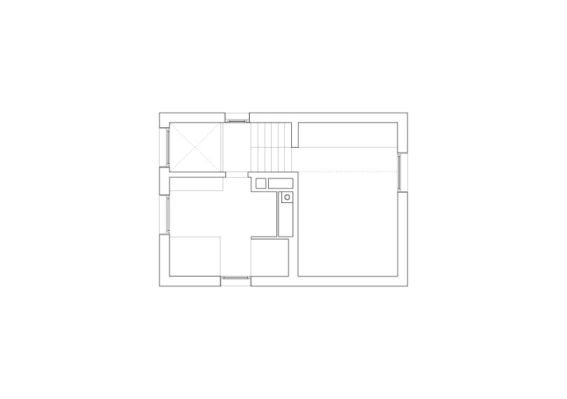
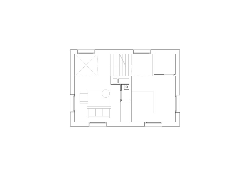
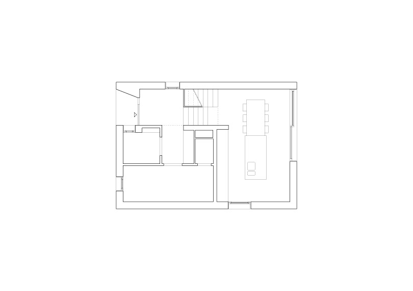
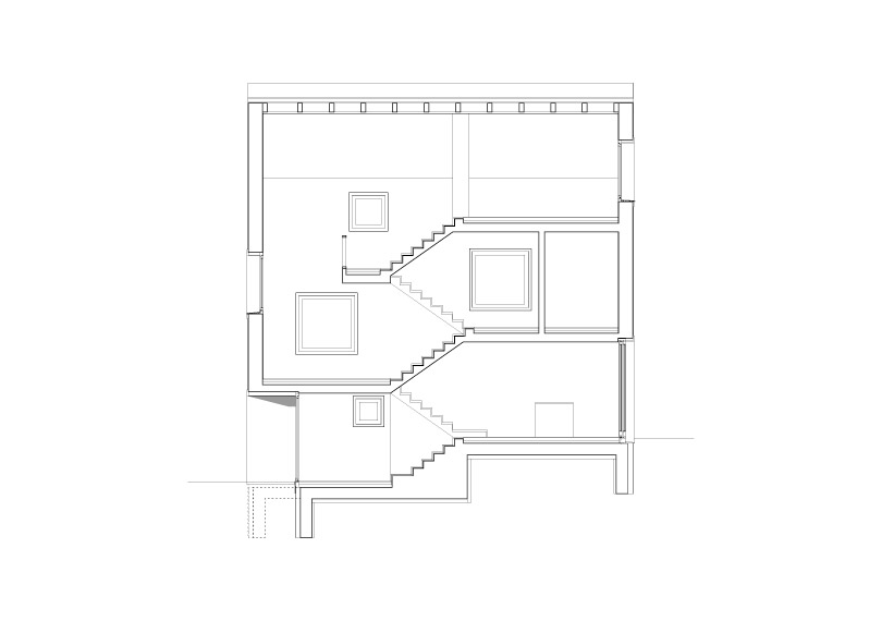
Am Rande eines Parks fügt sich das dreigeschossige kleine Haus in eine Reihe von Satteldachhäusern aus den 1960er Jahren, deren Hochparterre und Hochterrassen jedes Grundstück in seinem Höhenverlauf prägten. Auch der vorgefundene Baugrund weist Richtung Park einen Höhensprung von 1,20 Metern auf. Dieser wurde zum entwurfsbestimmenden Thema.
Es entstand ein Haus mit sechs Ebenen, durch jeweils einen Treppenlauf voneinander getrennt. Während Eingang, Wohnzimmer und Bad nach Westen zeigen, geben Esszimmer und die beiden Schlafräume den Blick auf den alten Baumbestand und den Park frei. In Massivbauweise mit hochwertigen Dämmziegeln errichtet, kann auf weitere Aussendämmung verzichtet werden.