010 Haus PTM Beilngries 2004 - 2005
Auftraggeber privat
Nutzfläche 132 m²
Baukosten KG 300 und 400 200.000 Euro
Leistungen 1-8
Status gebaut
Weitere Infos
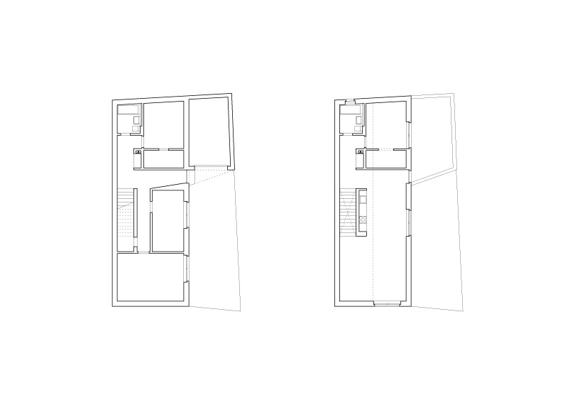
Das Grundstück liegt in einer von bäuerlichen Gehöften geprägten Gasse der Beilngrieser Altstadt. Haus und Hof bilden den Rhythmus der schmalen Gasse. Die Bebauung nimmt die vorhandene Typologie auf und unterteilt das schmale Grundstück in Haus und Hof samt rückseitigem Abschluss mit Garage und Dachterrasse. Um die Intimsphäre der Bewohner zu wahren wurden die Aufenthaltsräume im Obergeschoss angeordnet. Die Bauherrin und die Besucher werden von einem sich weitenden Flur und den Lichteinfall über der Treppe in die Aufenthaltsräume des Obergeschosses geführt.
Der offene Dachraum unterstreicht die Grosszügigkeit des Wohn-Essbereich, welcher sich zur Strasse und zum Hof öffnet. Das Gebäude wurde aus hochdämmendem Ziegelmauerwerk errichtet, alle Decken sind als StB-Filigrandecken, der Dachstuhl in Holz ausgeführt. Die EnEV ist erfüllt.