104 Ferienhaus MILNA Insel Brac, Kroatien 2012-2013
Auftraggeber privat
Leistungen 1-4
Status gebaut
Weitere Infos
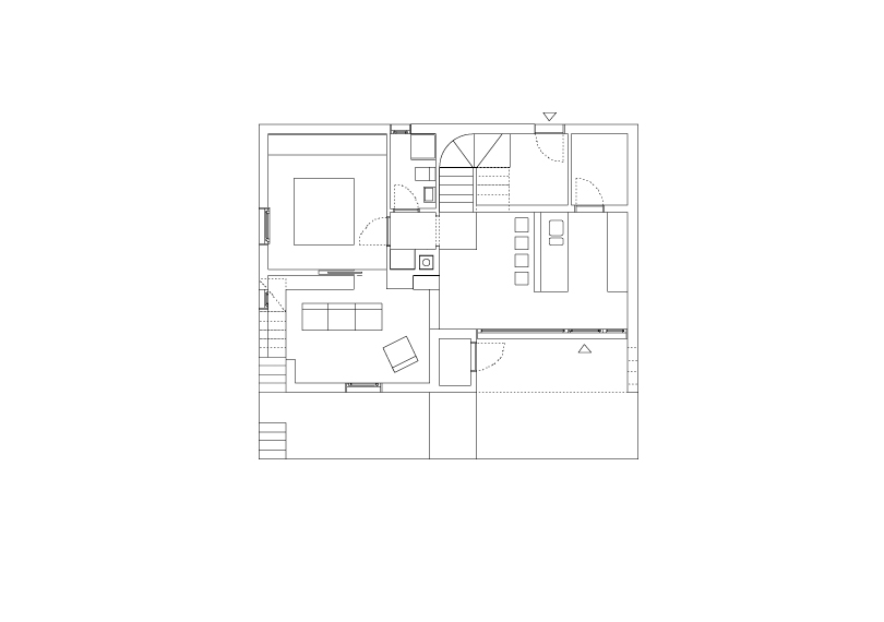
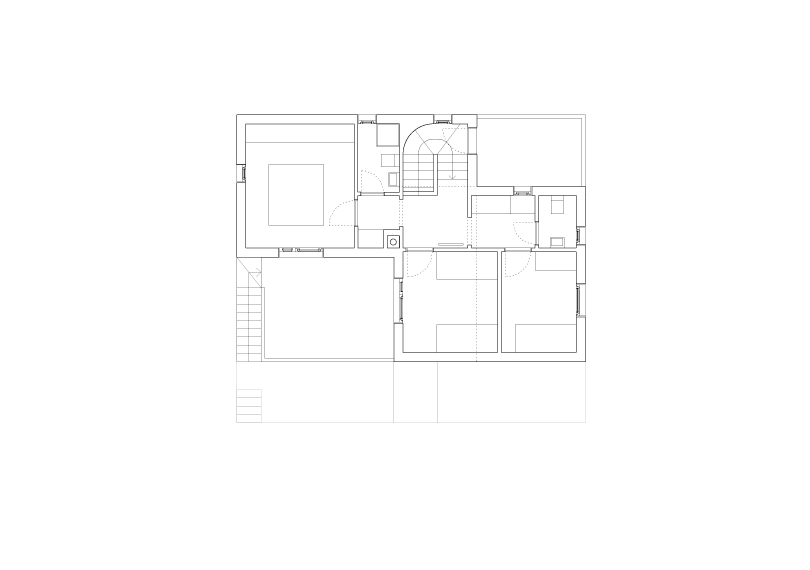
In einer versteckt gelegenen Bucht, geschützt von hochstämmigen Pinienbäumen steht auf abschüssigem Gelände ein Ferienhaus, das während der Sommermonate genügend Platz für Familie und Freunde offeriert. Auf mehreren Ebenen werden Innen- und Außenräume so angeordnet, dass sie zur rechten Zeit ins richtige Sonnenlicht gesetzt und zugleich vor Süd- und Westwind geschützt sind. Den Großteil des Tages bringt man auf drei Terrassen zu, weswegen die Aufenthaltsbereiche des Hauses klein gehalten wurden.
Eine Aussentreppe führt von den Schlafräumen im Obergeschoss auf die Hauptterrasse mit Ausrichtung auf den nur wenige Meter entfernten privaten Strand. In Zusammenarbeit mit einem ortsansässigen Architekturbüro wurde auf traditionelle Bauweise gesetzt, was sich in der Verwendung von lokalem Naturstein für Fassaden, Fenstergewände und Bodenbeläge niederschlägt.