056 Südliche Ringstrasse Ingolstadt, Wettbewerb 2007, 1. Preis
Auftraggeber GWG Ingolstadt GmbH
Baukosten KG 300 und 400 3.100.000 Euro
Weitere Infos
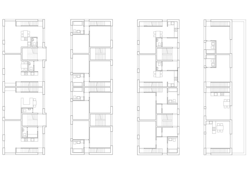
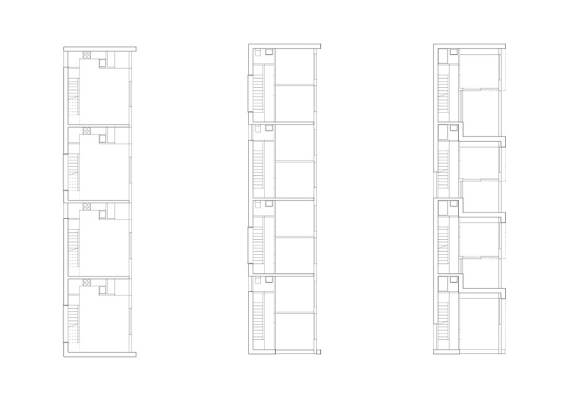
Städtebauliche Neuordnung und Lärmschutzbebauung und TG. Das Augustinviertel ist geprägt durch eine homogene architektonische Struktur, offene Zeilenbebauung überzieht das ganze Gebiet. Problematisch sind zum einen die Lage an der stark befahrenen Einfallstrasse, zum anderen die mangelnde Qualität der Freiräume und Grünflächen. Der Entwurf sieht eine Nachverdichtung in zwei Ebenen vor: 2- bzw. 3-geschössige Wohnzeilenbebauung zur Ringstrasse und Wohnbebauung statt einer bloßen Lärmschutzwand zur Einfallstrasse auf der einen, eingeschossige Nebengebäude für Müll, Fahrräder, Garagen auf der anderen Seite. Trotz der Nachverdichtung ist die ursprüngliche bauliche Struktur der Siedlung noch immer räumlich erfahrbar, da die Bestandsgebäude die neu hinzugekommenen um zwei Stockwerke überragen.